*Illustrations on the page were prepared in metric units. Projects ordered to the United States will be prepared in feet. Waiting time for the project may be extended by several days
Barn House L Compact Holiday
Size L [209-270m2]680 €
- Usable area:162.54 m²
- Development area:104,278 m²
- Height of the building at the ridge:8,48 m
- Roof pitch:45°
Choose a package type:
Looking for a similar project? See  - > PROJECTS AFTER CHANGES, or contact us-> CONTACT
The project price includes:
PROJECTS OPTIMIZED FOR CONSTRUCTION AND ENERGY EFFICIENCY
750 $0 $
PROJECT ADAPTED FOR AIR SOURCE HEAT PUMP AND UNDERFLOOR HEATING
750 $0 $
PROJECT WITH MECHANICAL VENTILATION AND HEAT RECOVERY
HOUSE PLANS:
- UNDERGROUND FLOOR 47,16 m²
- GROUND FLOOR 78,11 m²
- ATTIC 37,28 m²
SCHEMATIC SECTION:
FUNCTIONAL LAYOUT:
Barn House L Compact Holiday is smaller version of the Barn House L model, designed for a sloped plot. It is a house with an attic, where three rooms are located. The building features a simple and clear functional layout with an entrance on the gable wall side. In the entrance area, there is a convenient mudroom connected via a utility room to a double garage. The entire layout is arranged along a single communication axis, ending with a large, spacious living room with extensive glazing that provides a connection to the plot and terrace.
In the first section of the house, there is a room with a walk-in closet. The central part of the plan houses a pantry and a bathroom. At the end of the building, there is an open kitchen combined with a dining room and living room, where exposed stairs lead to the attic. The relaxation area has an open space extending to the full height of the roof structure. The glass facade, offering a view of the plot, is divided into two parts. This allows for the installation of external blinds on the lower section. The extended roof over the upper part of the facade reduces sun exposure and provides a roof over the terrace. The enclosed terrace also ensures privacy in the case of close proximity to neighboring plots and buildings, while also shielding from the wind. There is access through the glazing to a balcony from which the surrounding landscape can be admired.
From the hallway, you can access the attic via stairs that are open to the living room. On the attic level, there are three rooms and one bathroom. The front-facing room has a window in the gable wall of the building, while the bedroom at the other end of the hallway is illuminated by the glass facade. The bathroom features a skylight window. It is possible to easily close off the open space in the living room to create a fourth room.
From the ground floor, stairs also lead down to the basement level, where there is an independent apartment with one bedroom, a bathroom, and its own living area with a kitchenette and access to the terrace.
Functionally, the garage structure can be omitted, leaving the building in its simple, compact form. The building can serve as a residential home, or successfully function as a weekend getaway, holiday home, or rental property.
Dreaming of a building on a mountain slope? Planning an investment for rental purposes? The Stodoła L Compact Holiday project is an alternative version of Barn House L Compact designed to fit a sloped plot. It has excellent proportions and a sloped roof that blends seamlessly with a mountainous or forest landscape. Like all our buildings, it features a simple and clear functional layout with an entrance on the gable wall side. The building includes a usable attic and a basement level, totaling 7 rooms, a large open-plan living room with a large window, and an additional apartment in the basement. The exterior is finished in wood, fitting the mountain aesthetic, but if you prefer a classic white facade, that option is also available.
On the ground floor, you’ll find a bedroom, bathroom, pantry, and a comfortable living room with a kitchen nook, open to a balcony. The open ceiling above the living area gives the impression of even more space and enhances the sense of openness. Upstairs, three bedrooms share a common bathroom, accessible from the mezzanine, which offers a great view of the living room and the impressive glazing. However, if you prioritize more space over aesthetics, the open void can be enclosed to create another room!
Additionally, the basement level features a separate apartment with its own bathroom, living room with a kitchenette, and access to the terrace.
BUILDING STANDARDS AND CONSTRUCTION TECHNOLOGY
The building is designed to energy-efficient standards, in line with 2021 Technical Regulations. It features underfloor heating powered by an air-source heat pump, along with mechanical ventilation with heat recovery (recuperation).
- WALLS: Two-layered – aerated concrete block + rock wool, silicate partition walls
- FACADE: Light wooden cladding, roof tiles, dark plaster
- FLOOR: Monolithic slab
- STAIRS: Reinforced concrete
- ROOF: Ceramic or concrete roof tiles
The simple, gabled roof design allows for the installation of up to 34 photovoltaic panels on one side, generating around 11 kW of power. The visualizations show 24 panels, producing about 8 kW of power.
ARCHITECTURE:
This compact, two-story modern barn-style building is rectangular in shape and covered with a symmetrical 45° gable roof. The building is kept in a minimalist, uniform style, making it suitable for many locations. A striking feature is the large, glass facade that illuminates the living area, with an extended roof on the rear gable wall. The facade is divided into two sections to allow for the installation of external blinds on the lower part. The extended roof over the upper part limits sun exposure and provides a roof over the terrace.
The building features a very simple structural layout based on three axes, a simple gabled roof, and a concrete floor slab. This makes the house easy and economical to build.
The modern exterior of the building is finished with wooden cladding, accented by dark plaster. A wood-charring technique protects the wood from external weather conditions. The building can also be finished in an “urban” version with white plaster. There is flexibility in choosing materials to match the local context or the investor’s personal preferences.
The base design is suited for plots with views from the rear gable wall. The variants presented below best fit plots with access from the west, east, or north, allowing the longer side of the building to face south, which is ideal for placing solar panels.
MINIMUM PLOT DIMENSIONS:
The building can be situated in several variants. The basic variant is located at the entrance from the east and north sides (Variant 1).
The drawing shows the minimum distances from the property boundary according to Polish building regulations. In your region, these distances may be different.
However, it is possible to request a change in technology.
If you are interested in changing technology – contact us by e-mail.
FRAME BARN HOUSE
We have the ability to easily change the construction of the house to either steel or wood frame technology.
Benefits of frame technology:
- wooden frameworks are more resistant to shocks and seismic forces than traditional masonry structures
- a more environmentally friendly solution
- shorter construction time, shorter working hours for workers
PREFABRICATED BARN HOUSE
Barn Houses Ideas collaborate with a company that specializes in manufacturing building components, like: ceilings, walls, roof, etc.- in factories and then transporting and assembling them on site.
The technology allows for a construction time reduction by half. You are able to build your barn house in 4-5 months.
Prefabricated construction is about 15-25% more expensive than comprehensive traditional construction.
What do you gain in return? Among other things:
- an ecological house made of natural materials
- quick realization of the house even in 4-5 months, and thus also immunity to unstable prices on the market
- minimal involvement in the construction – without the restriction of teams and materi
greater usable area of the building due to the smaller thickness of the walls - a house situated on a foundation slab
- guidance and advice from an experienced team
- noticeably better quality and durability of individual components.
MODULAR BARN HOUSE
If you have any additional questions or you need advice – contact us
ADD-ONS TO THE PROJECT
During the ordering process (after adding to the cart), you can choose from a variety of add-ons for the project:

Files in .dwg
- Cost $380
Project drawings in editable .dwg format.

Additional visualizations
- Cost $250
If you consider a different material for the facade, you can order an alternative version of visualizations according to your needs. This includes 2 views – 1 from the front and 1 from the garden – with different materials in .jpg format. This service applies only to standard projects without modifications. Delivery time is up to 2.5 weeks.
In the Comments field describe the materials you would like to see in your version of the facade.

3d model in .skp
- Cost $380
Building model in editable .skp format with basic furnishings. Helpful for interior design
Custom add-ons
If you have specific requirements please contact us
Package type
Basic Package
This is basic information used to familiarize you with the project in detail. The package does not include detailed design solutions, only architectural drawings.
The package consists of:
- Floor plans
- Sections
- Roof plan
- Elevations with description of the materials
- The most important project information
- Architectural visualisation
- Joinery schedule
Files in PDF format
If you purchase the Basic Package, you will receive a 25% discount on the Full Package, valid for 2 weeks.Full Package
This is a complete project documentation - it contains all drawings needed to build our house.
The package consists of:
PDF files:
- The content of Basic Package
- Drawings & Description of:
- Construction
- Sanitary Installation
- Electrical Installation
DWG files:
- The Basic Package content
SKP files:
- Building model
| Basic Package | Full Package | |||
|---|---|---|---|---|
| Floor plans | x | x | ||
| Sections | x | x | ||
| Elevations | x | x | ||
| Elevation Materials Schedule | x | x | ||
| Partition Types | x | x | ||
| Windows Schedule | x | x | ||
| The most important project information with basic parametrs | x | x | ||
| Roof plan | x | x | ||
| Architectural visualization | x | x | ||
| Technical description of the building | x | |||
| Sanitary Instalations - description & drawings | x | |||
| Mechanical ventilation systems plans | Plumbing plans | Central heating systems plans | x | |
| Electrical Instalations - description & drawings: | x | |||
| Plan with: switchboard, electrical sockets, lighting fixtures and switches | Electricity board scheme | Lighting protection system | x | |
| Construction description & drawings: | x | |||
| Structure plans (with reinforcement) | Foundation plan | Roof Truss Detail Plan | x | |
| Roff truss elements schedule | Reinforcing steel schedule | Construction details | x | |
| Energy performance characteristics | x | |||
| DWG files with the contents of the Basic Package | x | |||
| 3d model in .skp | x |
Plan version
Standard Plan
Mirrored Plan
Plots have different shapes and entrances from different sides. To make it easier for you to adapt our warehouse plan to your plot of land, we offer you a choice between two versions of the warehouse plan: the standard plan and the mirror plan.
The most important factor in choosing between the two is the direction of the world from which the entrance is located. This determines which version of the plan will fit the most for your plot.
In the ‘Plot’ section of the product page, we provide a detailed description of our recommended entrance location. Take a look at this information and choose the variant that best suits your plot.
In addition to the option to change the building technology and construction, described in the “Construction Options” tab for each project, it is also possible to introduce additional modifications. We handle both minor changes and more advanced ones, such as modifing the layout of rooms in the house or changing the appearance of the facade.
If you are interested or have any questions regarding this, please contact us.
Describe in an email the modifications you are interested in, and we will price them individually.
BARN HOUSES AFTER MODIFICATIONS
You can see all our project implementations here:
COMPLETED HOUSES
The Barn House Idea is not just a blog and ready-made projects; it’s a way of thinking about construction, about choices and compromises to achieve the desired goal with full satisfaction. The Barn Project is about minimalism, functionality, simplicity, and energy efficiency, all guided by construction economics.
Our Barn House M has been inhabited for 6 years now. We didn’t expect that our construction and design efforts, which we document on the blog and through social media, would create a community around this idea. It could be said that The Barn Project is more than just projects; it’s also a forum for exchanging opinions and experiences. It’s a community that you can also be a part of.
Check out the social media profiles of investors building houses according to our projects as well:
Barn House S @jak_możesz_to_sie_nie_buduj
Barn House S+ :
@nasza_splus
@stodola_clt
@stodola_kolo_kamienia
Barn House S+ Premium :
@s_premium_stodola
@troche.inna.stodola
@stodola_splus_premium
@nasza_polna_stodola
@stodola_premium
@budowajakzakare
@stodola_premium_podlasem
@stodolaspluspremiumnawsi
Barn House S+ Premium after modifications 2 @kolejna_stodola
Barn House S+ Exclusive after modifications @w_mojej_parterowce_
Barn House S + Long:
@stodola_wzg
@stodola.ulipy
@spluslong
@naszalongbarn
Barn House M @nad_morze.m_stodola
Barn House M parterowa @m_parterowa
Barn House M-L @naszeklepisko
Barn House M-L after modifications 2 @stodola_dziennik_budowy
Barn House with Atrium :
@sosnowe_atrium
@projekt_stodola_z_atrium
Barn House Optimum @iznowustodola
Barn House Double @projektpodwojnastodola
Barn House Smart + @moja_smart_stodola
Barn House L Compact @nasza_stodola_l_compact
Barn House L+ @oursecretbarn
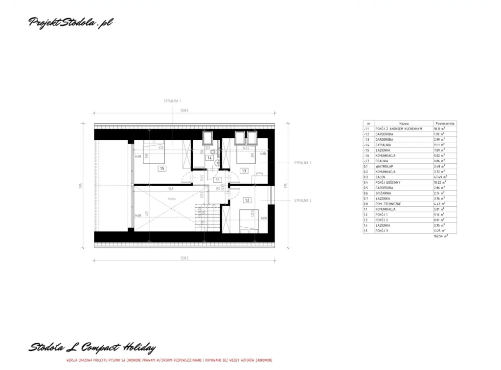
HOUSE PLANS:
- UNDERGROUND FLOOR 47,16 m²
- GROUND FLOOR 78,11 m²
- ATTIC 37,28 m²
SCHEMATIC SECTION:
FUNCTIONAL LAYOUT:
Barn House L Compact Holiday is smaller version of the Barn House L model, designed for a sloped plot. It is a house with an attic, where three rooms are located. The building features a simple and clear functional layout with an entrance on the gable wall side. In the entrance area, there is a convenient mudroom connected via a utility room to a double garage. The entire layout is arranged along a single communication axis, ending with a large, spacious living room with extensive glazing that provides a connection to the plot and terrace.
In the first section of the house, there is a room with a walk-in closet. The central part of the plan houses a pantry and a bathroom. At the end of the building, there is an open kitchen combined with a dining room and living room, where exposed stairs lead to the attic. The relaxation area has an open space extending to the full height of the roof structure. The glass facade, offering a view of the plot, is divided into two parts. This allows for the installation of external blinds on the lower section. The extended roof over the upper part of the facade reduces sun exposure and provides a roof over the terrace. The enclosed terrace also ensures privacy in the case of close proximity to neighboring plots and buildings, while also shielding from the wind. There is access through the glazing to a balcony from which the surrounding landscape can be admired.
From the hallway, you can access the attic via stairs that are open to the living room. On the attic level, there are three rooms and one bathroom. The front-facing room has a window in the gable wall of the building, while the bedroom at the other end of the hallway is illuminated by the glass facade. The bathroom features a skylight window. It is possible to easily close off the open space in the living room to create a fourth room.
From the ground floor, stairs also lead down to the basement level, where there is an independent apartment with one bedroom, a bathroom, and its own living area with a kitchenette and access to the terrace.
Functionally, the garage structure can be omitted, leaving the building in its simple, compact form. The building can serve as a residential home, or successfully function as a weekend getaway, holiday home, or rental property.
Dreaming of a building on a mountain slope? Planning an investment for rental purposes? The Stodoła L Compact Holiday project is an alternative version of Barn House L Compact designed to fit a sloped plot. It has excellent proportions and a sloped roof that blends seamlessly with a mountainous or forest landscape. Like all our buildings, it features a simple and clear functional layout with an entrance on the gable wall side. The building includes a usable attic and a basement level, totaling 7 rooms, a large open-plan living room with a large window, and an additional apartment in the basement. The exterior is finished in wood, fitting the mountain aesthetic, but if you prefer a classic white facade, that option is also available.
On the ground floor, you’ll find a bedroom, bathroom, pantry, and a comfortable living room with a kitchen nook, open to a balcony. The open ceiling above the living area gives the impression of even more space and enhances the sense of openness. Upstairs, three bedrooms share a common bathroom, accessible from the mezzanine, which offers a great view of the living room and the impressive glazing. However, if you prioritize more space over aesthetics, the open void can be enclosed to create another room!
Additionally, the basement level features a separate apartment with its own bathroom, living room with a kitchenette, and access to the terrace.
BUILDING STANDARDS AND CONSTRUCTION TECHNOLOGY
The building is designed to energy-efficient standards, in line with 2021 Technical Regulations. It features underfloor heating powered by an air-source heat pump, along with mechanical ventilation with heat recovery (recuperation).
- WALLS: Two-layered – aerated concrete block + rock wool, silicate partition walls
- FACADE: Light wooden cladding, roof tiles, dark plaster
- FLOOR: Monolithic slab
- STAIRS: Reinforced concrete
- ROOF: Ceramic or concrete roof tiles
The simple, gabled roof design allows for the installation of up to 34 photovoltaic panels on one side, generating around 11 kW of power. The visualizations show 24 panels, producing about 8 kW of power.
ARCHITECTURE:
This compact, two-story modern barn-style building is rectangular in shape and covered with a symmetrical 45° gable roof. The building is kept in a minimalist, uniform style, making it suitable for many locations. A striking feature is the large, glass facade that illuminates the living area, with an extended roof on the rear gable wall. The facade is divided into two sections to allow for the installation of external blinds on the lower part. The extended roof over the upper part limits sun exposure and provides a roof over the terrace.
The building features a very simple structural layout based on three axes, a simple gabled roof, and a concrete floor slab. This makes the house easy and economical to build.
The modern exterior of the building is finished with wooden cladding, accented by dark plaster. A wood-charring technique protects the wood from external weather conditions. The building can also be finished in an “urban” version with white plaster. There is flexibility in choosing materials to match the local context or the investor’s personal preferences.
The base design is suited for plots with views from the rear gable wall. The variants presented below best fit plots with access from the west, east, or north, allowing the longer side of the building to face south, which is ideal for placing solar panels.
MINIMUM PLOT DIMENSIONS:
The building can be situated in several variants. The basic variant is located at the entrance from the east and north sides (Variant 1).
The drawing shows the minimum distances from the property boundary according to Polish building regulations. In your region, these distances may be different.
However, it is possible to request a change in technology.
If you are interested in changing technology – contact us by e-mail.
FRAME BARN HOUSE
We have the ability to easily change the construction of the house to either steel or wood frame technology.
Benefits of frame technology:
- wooden frameworks are more resistant to shocks and seismic forces than traditional masonry structures
- a more environmentally friendly solution
- shorter construction time, shorter working hours for workers
PREFABRICATED BARN HOUSE
Barn Houses Ideas collaborate with a company that specializes in manufacturing building components, like: ceilings, walls, roof, etc.- in factories and then transporting and assembling them on site.
The technology allows for a construction time reduction by half. You are able to build your barn house in 4-5 months.
Prefabricated construction is about 15-25% more expensive than comprehensive traditional construction.
What do you gain in return? Among other things:
- an ecological house made of natural materials
- quick realization of the house even in 4-5 months, and thus also immunity to unstable prices on the market
- minimal involvement in the construction – without the restriction of teams and materi
greater usable area of the building due to the smaller thickness of the walls - a house situated on a foundation slab
- guidance and advice from an experienced team
- noticeably better quality and durability of individual components.
MODULAR BARN HOUSE
If you have any additional questions or you need advice – contact us
ADD-ONS TO THE PROJECT
During the ordering process (after adding to the cart), you can choose from a variety of add-ons for the project:

Files in .dwg
- Cost $380
Project drawings in editable .dwg format.

Additional visualizations
- Cost $250
If you consider a different material for the facade, you can order an alternative version of visualizations according to your needs. This includes 2 views – 1 from the front and 1 from the garden – with different materials in .jpg format. This service applies only to standard projects without modifications. Delivery time is up to 2.5 weeks.
In the Comments field describe the materials you would like to see in your version of the facade.

3d model in .skp
- Cost $380
Building model in editable .skp format with basic furnishings. Helpful for interior design
Custom add-ons
If you have specific requirements please contact us
Package type
Basic Package
This is basic information used to familiarize you with the project in detail. The package does not include detailed design solutions, only architectural drawings.
The package consists of:
- Floor plans
- Sections
- Roof plan
- Elevations with description of the materials
- The most important project information
- Architectural visualisation
- Joinery schedule
Files in PDF format
If you purchase the Basic Package, you will receive a 25% discount on the Full Package, valid for 2 weeks.Full Package
This is a complete project documentation - it contains all drawings needed to build our house.
The package consists of:
PDF files:
- The content of Basic Package
- Drawings & Description of:
- Construction
- Sanitary Installation
- Electrical Installation
DWG files:
- The Basic Package content
SKP files:
- Building model
| Basic Package | Full Package | |||
|---|---|---|---|---|
| Floor plans | x | x | ||
| Sections | x | x | ||
| Elevations | x | x | ||
| Elevation Materials Schedule | x | x | ||
| Partition Types | x | x | ||
| Windows Schedule | x | x | ||
| The most important project information with basic parametrs | x | x | ||
| Roof plan | x | x | ||
| Architectural visualization | x | x | ||
| Technical description of the building | x | |||
| Sanitary Instalations - description & drawings | x | |||
| Mechanical ventilation systems plans | Plumbing plans | Central heating systems plans | x | |
| Electrical Instalations - description & drawings: | x | |||
| Plan with: switchboard, electrical sockets, lighting fixtures and switches | Electricity board scheme | Lighting protection system | x | |
| Construction description & drawings: | x | |||
| Structure plans (with reinforcement) | Foundation plan | Roof Truss Detail Plan | x | |
| Roff truss elements schedule | Reinforcing steel schedule | Construction details | x | |
| Energy performance characteristics | x | |||
| DWG files with the contents of the Basic Package | x | |||
| 3d model in .skp | x |
Plan version
Standard Plan
Mirrored Plan
Plots have different shapes and entrances from different sides. To make it easier for you to adapt our warehouse plan to your plot of land, we offer you a choice between two versions of the warehouse plan: the standard plan and the mirror plan.
The most important factor in choosing between the two is the direction of the world from which the entrance is located. This determines which version of the plan will fit the most for your plot.
In the ‘Plot’ section of the product page, we provide a detailed description of our recommended entrance location. Take a look at this information and choose the variant that best suits your plot.
In addition to the option to change the building technology and construction, described in the “Construction Options” tab for each project, it is also possible to introduce additional modifications. We handle both minor changes and more advanced ones, such as modifing the layout of rooms in the house or changing the appearance of the facade.
If you are interested or have any questions regarding this, please contact us.
Describe in an email the modifications you are interested in, and we will price them individually.
BARN HOUSES AFTER MODIFICATIONS
You can see all our project implementations here:
COMPLETED HOUSES
The Barn House Idea is not just a blog and ready-made projects; it’s a way of thinking about construction, about choices and compromises to achieve the desired goal with full satisfaction. The Barn Project is about minimalism, functionality, simplicity, and energy efficiency, all guided by construction economics.
Our Barn House M has been inhabited for 6 years now. We didn’t expect that our construction and design efforts, which we document on the blog and through social media, would create a community around this idea. It could be said that The Barn Project is more than just projects; it’s also a forum for exchanging opinions and experiences. It’s a community that you can also be a part of.
Check out the social media profiles of investors building houses according to our projects as well:
Barn House S @jak_możesz_to_sie_nie_buduj
Barn House S+ :
@nasza_splus
@stodola_clt
@stodola_kolo_kamienia
Barn House S+ Premium :
@s_premium_stodola
@troche.inna.stodola
@stodola_splus_premium
@nasza_polna_stodola
@stodola_premium
@budowajakzakare
@stodola_premium_podlasem
@stodolaspluspremiumnawsi
Barn House S+ Premium after modifications 2 @kolejna_stodola
Barn House S+ Exclusive after modifications @w_mojej_parterowce_
Barn House S + Long:
@stodola_wzg
@stodola.ulipy
@spluslong
@naszalongbarn
Barn House M @nad_morze.m_stodola
Barn House M parterowa @m_parterowa
Barn House M-L @naszeklepisko
Barn House M-L after modifications 2 @stodola_dziennik_budowy
Barn House with Atrium :
@sosnowe_atrium
@projekt_stodola_z_atrium
Barn House Optimum @iznowustodola
Barn House Double @projektpodwojnastodola
Barn House Smart + @moja_smart_stodola
Barn House L Compact @nasza_stodola_l_compact
Barn House L+ @oursecretbarn






































2
3
2